Esentepe Oasis'de Fırsat Satılık 1+1 Penthouse...

£125,000

Esentepe Oasis'de Fırsat Satılık 1+1 Penthouse...

Yeşil dağların eteklerinde, yürüyüş parkurunun hemen yanı başınızda başladığı, Akdeniz'e sadece 700 metre uzaklıktaki yeni projemizdeki 1+1 Penthouse Dairemiz

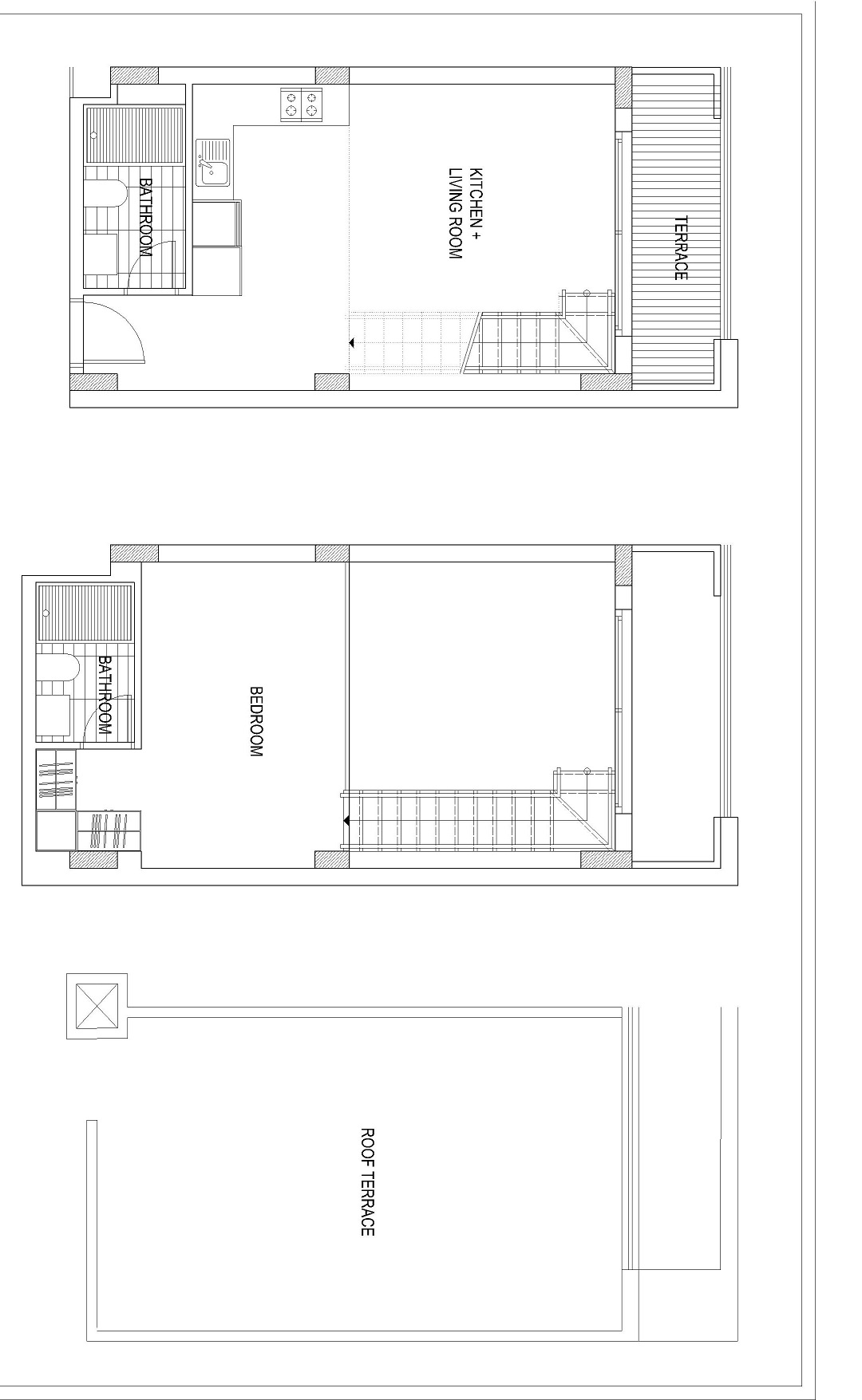
1+1 57 m²

6 m² Balkon

30 m² Çatı Terası ile Benzersiz bir yaşam 
Bu tam donanımlı tesis, bahçeli stüdyo dairelerden üç yatak odalı bungalovlara kadar değişen 174 adet Üniteden oluşmaktadır.

Konut sakinleri, iki açık yüzme havuzu, spor salonu, sauna, ısıtmalı kapalı havuz ve tesis bünyesindeki restoran ve bar dahil olmak üzere birçok olanağın keyfini çıkaracak.

Tasarım amacımız Akdeniz hissini ve manzarasını kucaklarken konfor ve stil sağlamaktır.
Böylece proje, dağlardan denize doğru uzanan ve manzarayı ve mahremiyeti en üst düzeye çıkaran çeşitli teraslar üzerine kuruludur.
Teslim Tarihi Aralık 2025 

Daha detaylı bilgi için lütfen iletişime geçiniz...

  • Balcony
  • Pool
Price
£125,000
Kocan status
Exchange Koçan
Property area
57 m²
Bath
1
Balcony
2
Property ID
509
Property Type
Apartment
Floor
2
Room
1+1
Build year
0

Property Dmc

Real Estate Agent

+90 (533) 825 20 96
+90 (533) 825 20 72

Gallery

Image
Image
Image
Image
Image
Image
Image
Image
Image
Image
Image
Image
Image
Image
Image
Image
Image
Image
Image
undefined


Cookies Consent

This website use cookies to help you have a superior and more relevant browsing experience on the website. Read more...